
Auftraggeber: Große Kreisstadt Waghäusel
Größe: 7,5 ha
Erbrachte Leistungen: 1. Preis Wettbewerb, Städtebaulicher Entwurf, Bebauungsplan mit Umweltbericht, artenschutzrechtliche Prüfung, Ziel- und Entwicklungsplan, Verfahrensbegleitung, Grundstücksvergabekonzept, Freiflächenplanung Lph. 1-8
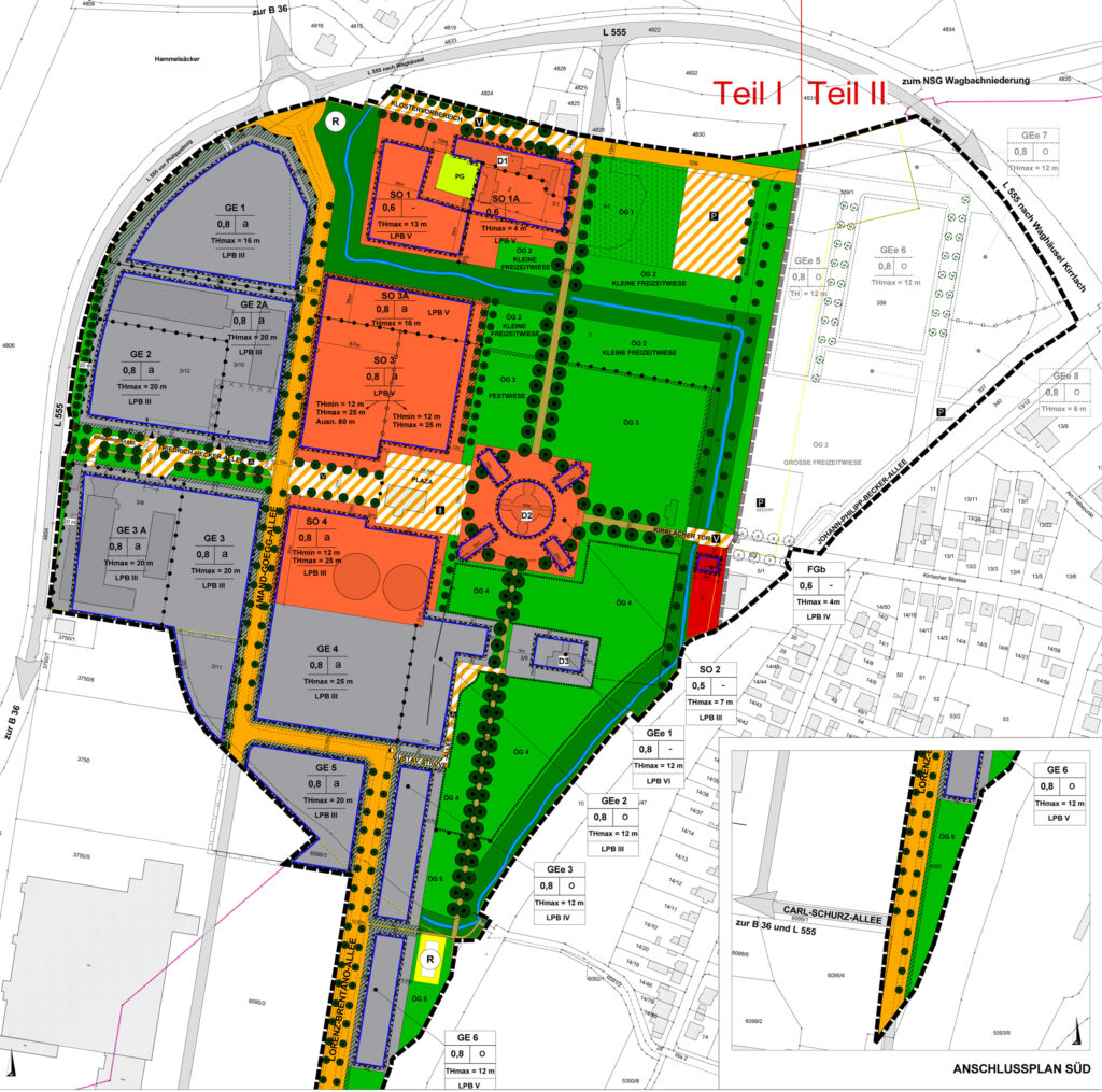
Seit dem Wettbewerbsgewinn 2001 begleitet bhm die Entwicklung des Geländes der ehemaligen Zuckerfabrik Waghäusel zu einem zukunftsfähigen Standort für Gewerbe, Kultur und Freizeit. Dabei sind für städtebauliche, landschaftsplanerische und freiraumplanerische Aspekte fachübergreifend alle Abteilungen von bhm tätig. Besondere Herausforderungen sind das Planen und Bauen im historischen Kontext und die Schaffung eines völlig neuen und offenen Laufes für den Wagbach.
Die Besonderheit des Geländes liegt im engen räumlichen Zusammenhang von Gewerbebrache mit Zuckersilos, Wallfahrtskirche mit Kloster und barocker Schlossanlage mit Eremitage.
Es zeichnet sich durch seine zentrale Lage in der Region, durch besonders gute Verkehrsanbindung aber darüber hinaus auch durch seinen historisch gewachsenen Gebäudebestand und seine Bedeutung für die Umgebung und deren Bewohner aus. Diese Standortgunst gilt es zu nutzen und durch Zuführung neuer, angemessener Nutzung dem Gebiet eine Perspektive für die Zukunft zu geben.
Die Umnutzung der ehemaligen Produktionsstätte der Südzucker AG stand im Fokus des 2001 ausgelobten, internationalen Wettbewerbs. Die Zugänglichkeit des Areals für Erholungssuchende und Veranstaltungen war ausdrücklich gewünscht. Zu zahlreich waren die unterschiedlichen Entwicklungsstadien, die das Gelände in seiner fast 300-jährigen Geschichte erlebt hat, um einen bestimmten historischen Zustand wiederherzustellen.
Der besondere Reiz des auf dem Gelände vorhandenen Gebäudebestandes liegt in seiner kontrastreichen Vielfalt, die auf engstem Raum historische Entwicklung erlebbar macht. So liegt die Qualität des Ortes insbesondere auch in seiner Identität von Eremitage, Kloster und Zuckersilos. Bei der Neuordnung des Areals zum kulturellen und gewerblichen Standort sollen diese Qualitäten herausgearbeitet und die Besonderheit des Gebietes und seine wiederzugewinnende regionale Bedeutung im Planungskonzept spürbar werden.
Durch die Ausweisung von Flächen für Dienstleistungen, kulturelle Einrichtungen und Parkanlagen/Grünflächen soll darüber hinaus ein attraktiver Standort für Kultur und Freizeit geschaffen werden. Ein besonderer Wert wird dabei insbesondere auf die Erhaltung eines Nebeneinanders von historischen, denkmalgeschützten Gebäuden, ehemaligen Fabrikanlagen und neueren Gewerbebauten gelegt.
Die zentralen Achsen, welche Wallfahrtskirche, Festwiese, Eremitagegarten und Waldpark miteinander verbinden, bilden das Grundgerüst des Entwurfes. Nach Wegfall der Zuckerfabrik entstand eine weitläufige Parkanlage mit zahlreichen ökologischen und gestalterischen Schwerpunkten.
Zentrales Gestaltungselement des EREMITAGEPARKS sind die vom neu gestalteten INNENRING ausgehenden Achsen, die die Wallfahrtskirche, die Festwiesen, den Eremitagegarten und den Waldpark mit Zugang zum Wagbach miteinander verbinden.
Der EREMITAGEGARTEN selbst umfasst das nordöstliche Carré der ursprünglich barocken Gartenanlage der Eremitage. In Anlehnung an die verschiedenen historischen Aufzeichnungen wurden einzelne Elemente wieder aufgenommen, neu interpretiert und den Anforderungen der vorgesehenen Nutzung angepasst. Wegbegleitend findet man Elemente aus der Geschichte des Gartens: Das nördliche Zugangstor, die an die Eremitenhäuschen erinnernden Pergolen und die Veranstaltungsplattform an Stelle des ehemaligen vierten Kavalierhauses der Eremitage. Zwei Eremitenhäuser wurden im Bereich des Gartens als Metallkonstruktionen neu interpretiert.
Die FEST- UND FREIZEITWIESEN befinden sich östlich und westlich der Nordachse, begleitet durch eine neue Baumallee. Hier ist genügend Platz für größere Feierlichkeiten.
Der südlich angrenzende WALDPARK erhielt einen halboffenen, parkartigen Charakter. Parallel zur bestehenden Südachse wurde er fußläufig erschlossen und dank halboffener Strukturen die Sichtbeziehung zum Barockschlösschen ermöglicht. Historische Artefakte, wie Brunnen, Ummauerungen und Tore wurden bewusst in die Neugestaltung integriert.
Folgt man den zahlreichen Wegen nach Süden, gelangt man zur historischen Wagbachbrücke. Sie markiert den Beginn des neuen Wagbachverlaufs. In Zeiten der Zuckerproduktion wurde der Wagbach verdolt, doch das Kanalbauwerk ist heute stark sanierungsbedürftig und verläuft quer unter den neuen Straßen und Gewerbegrundstücken. Da der Neubau einer Verdolung wasserrechtlich nicht genehmigungsfähig ist, wurde ein neuer, offener Bachlauf geschaffen. Er ermöglicht die sinnvolle Nutzung des Gewerbeparks.
Der Wagbach verläuft fortan östlich der Eremitage zwischen Bahnstrecke und der historischen Umfassungsmauer. Er mündet jenseits der Landesstraße wieder in sein ursprüngliches Bett. Insgesamt beträgt die Länge des neuen Verlaufs ca. 1.300 m und ersetzt ca. 1.090 m der bisherigen verdolten bzw. kanalisierten Laufstrecke.
Am neuen, offenen Bachlauf entstehen große Böschungsbereiche, die den östlichen Abschluss der neuen Parkanlage bilden und deren Gestaltung in Trassenführung und Baumpflanzung gestalterisch aufgenommen werden.
Aus ökologischer Sicht bietet die Offenlegung einen durchgängigen Lebensraum für viele bedrohte und geschützte Pflanzen- und Tierarten. Totholz im Bachbett sorgt für ein zusätzliches Angebot an vielfältigen Lebensräumen. Die neue Anbindung an die „Wagbachniederung“ im Norden trägt darüber hinaus langfristig zu einer erheblichen Aufwertung dieses überregional bedeutsamen Vogel- und Naturschutzgebietes bei. Der Eremitagegarten als öffentlicher Freiraum und der neue Wagbachlauf als Teil eines FFH-Gebietes konnten im Sommer 2016 feierlich eingeweiht werden.
Weitere Informationen:
- Projektseite der Großen Kreisstadt Waghäusel
- Wanderroute auf Komoot











