
Stadtplanung > Bewertung Innenentwicklungspotenzial Waghäusel
Bewertung Innenentwicklungspotenzial Waghäusel
2013
Auftraggeber: Große Kreisstadt Waghäusel
Größe: 4.284 ha
Erbrachte Leistungen: Studie zum Innenentwicklungspotenzial
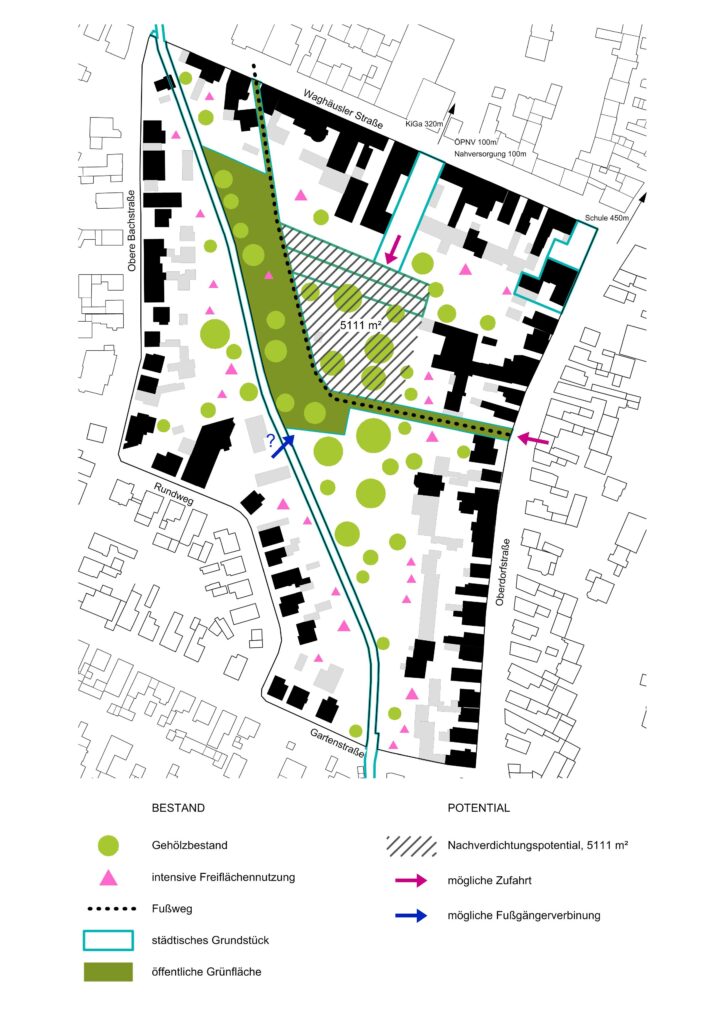
Inwieweit können innerörtliche Flächen für eine weitere bauliche Nutzung aktiviert werden, um eine Neuinanspruchnahme von Flächen an den Ortsrändern zu vermeiden?
Diese Frage sollte im Rahmen einer gesonderten Untersuchung im Hinblick auf die Flächenbedarfsermittlung für die Fortschreibung des FNP beantwortet werden.
Der Schutz und die rechtliche Absicherung der Abfolge “Gebäude – grüner zusammenhängender Blockinnenbereich” soll zu einer qualitative Stadtentwicklung beitragen. Sieben weitere Blöcke eignen sich aufgrund der Größe der rückwärtigen Freiflächen für eine Bebauung in dritter Reihe mit einer eigenen Erschließung.






